- 75387 Neubulach
- Kaufpreis950.000,00 €
- Provision3,57 % inkl. 19 % MwSt. inkl. MwSt.
- Courtagehinweis3,57% Käuferprovision inkl. gesetzl. MwSt. verdient und fällig mit Beurkundung des notariellen Kaufvertrages. inkl. MwSt.
- Grundstück 740,0 m²
- Anzahl Zimmer 12,0
- Objektnummer 215
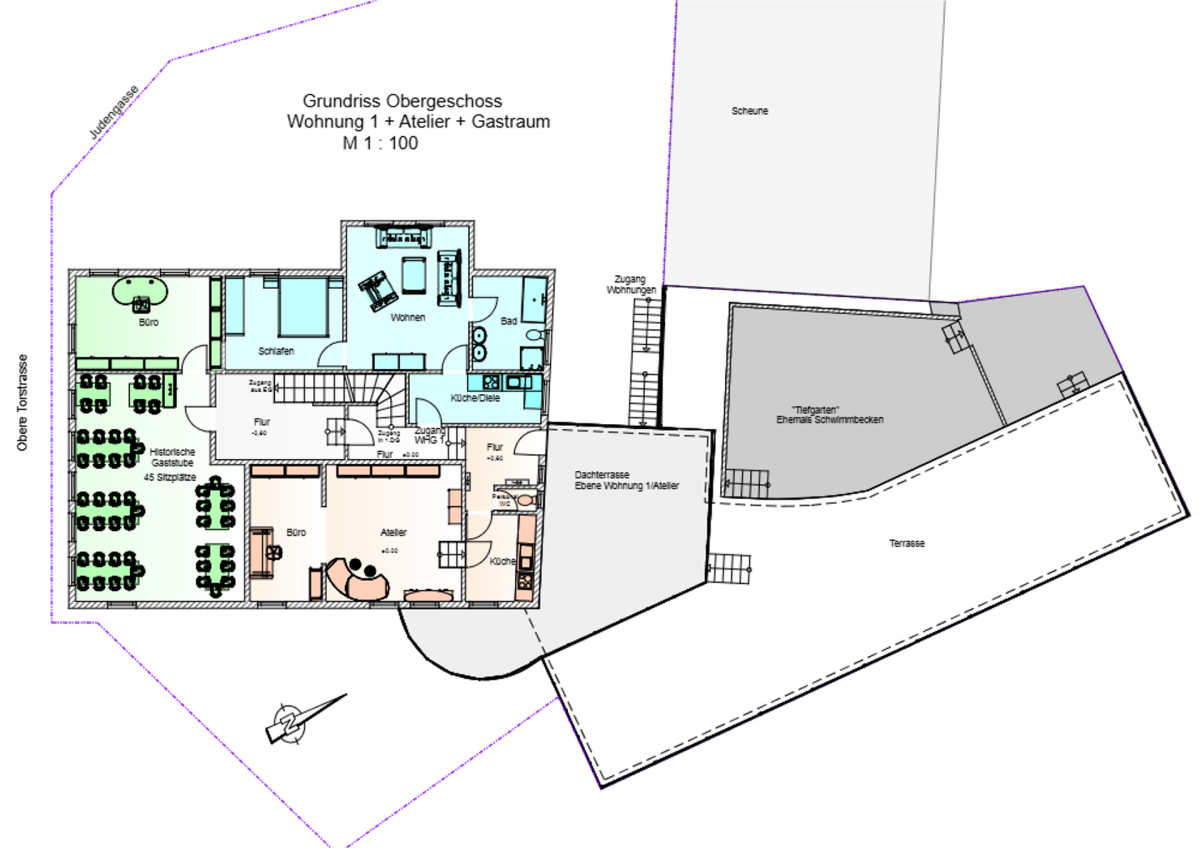
Brauhaus Rössle im Herzen von Neubulach mit Gaststätte, Biergarten und drei Wohneinheiten
Objektbeschreibung
Das Brauhaus Rössle im malerischen Stadtkern von Neubulach verbindet in hohem Maße Genuss-, Wohlfühl- und Erlebnisgastronomie in urigem und gemütlichem Ambiente. Weit über die Grenzen von Neubulach bekannt und geschätzt, treffen sich hier gerne Tagesausflügler, Radfahrer und Wanderer wie auch Stammgäste zum Ausruhen und Auftanken.
Seit 60 Jahren im Familienbesitz sucht das Rössle nun einen neuen Eigentümer, der die ertragreiche Gastronomie weiterführen und weiterhin mit eigenen Ideen beleben möchte.
Neben dem Gaststättenbetrieb mit Brauanlage und Biergarten besteht das denkmalgeschützte und liebevoll modernisierte Haus aus dem 15. Jahrhundert über 3 vermietete Wohneinheiten und einem Atelier mit zusammen 357 m² in den oberen Etagen. Dank kontinuierlicher Erneuerungen und Renovierungen befindet sich das Gebäude in einem sehr guten Zustand. Erd- und Obergeschoss werden über die Öl-Zentralheizung, die beiden Wohnungen im Dachgeschoss jeweils über Gastherme beheizt.
Vom jetzigen Inhaber wird das Unternehmen seit 1998 geführt. 2009 wurde eine 5hl-Brauanlage eingebaut. Seitdem erfreut sich das Brauhaus einer stetig wachsenden Gästezahl. Wechselnde Bierspezialitäten und die deftige Brauhausküche haben sich in der Umgebung einen Namen gemacht. Der SWR berichtete bereits drei Mal über die Verwendung alter Bierrezepte und die Herstellung der eigenen Kreationen.
Einem fließenden Übergang mit Einarbeitungszeit durch den bisherigen Inhaber steht nichts im Wege.
Ausstattungsdetails
Neben dem Gaststättenbetrieb mit Brauanlage und Biergarten besteht das denkmalgeschützte und liebevoll modernisierte Haus aus dem 15. Jahrhundert über 3 vermietete Wohneinheiten und einem Atelier mit zusammen 357 m² in den oberen Etagen. Dank kontinuierlicher Erneuerungen und Renovierungen befindet sich das Gebäude in einem sehr guten Zustand. Erd- und Obergeschoss werden über die Öl-Zentralheizung, die beiden Wohnungen im Dachgeschoss jeweils über Gastherme beheizt.
Vom jetzigen Inhaber wird das Unternehmen seit 1998 geführt. 2009 wurde eine 5hl-Brauanlage eingebaut.
Seitdem erfreut sich das Brauhaus einer stetig wachsenden Gästezahl. Wechselnde Bierspezialitäten und die deftige Brauhausküche haben sich in der Umgebung einen Namen gemacht. Der SWR berichtete bereits drei Mal über die Verwendung alter Bierrezepte und die Herstellung der eigenen Kreationen.
Lage
Das Brauhaus Rössle befindet sich im malerischen Stadtkern von Neubulach im Nordschwarzwald, einem attraktiven Städtchen und Kurort mit rund 6.000 Einwohnern. Die Versorgung der Bürger ist für den ländlichen Raum überdurchschnittlich gut. Neben den Lebensmittelmärkten Edeka und Netto verfügt der Ort über zwei Allgemeinärzte, Apotheke, zwei Banken, Metzgerei, drei Bäckereien, Drogeriemarkt, Post, eine Gemeinschafts- und eine Grundschule sowie in jedem Ortsteil einen Kindergarten.
Die Kombination von ländlicher Idylle und die Nähe zum Ballungsraum Sindelfingen-Böblingen-Stuttgart macht dieses mittelalterliche Städtchen besonders liebenswert. Touristische Aushängeschilder sind das historische Silberbergwerk, die herrlichen Wanderwege und die Nähe zum Thermalbad Bad Teinach und weiteren Fachwerkstädtchen im Bäderkreis Calw.
Über die 200 m entfernte Bushaltestelle besteht Anschluss an die 4 km entfernte Bahnstation Bad Teinach/ Neubulach. Die Autobahnanschlüsse A81 und A8 befinden sich in 22 km und 38 km Entfernung.
Sonstige Angaben
Sehr gerne laden wir Sie zu einem persönlichen Besichtigungstermin ein, senden Sie uns hierzu einfach eine Anfrage mit Ihrer Adresse und Telefonnummer unter der wir Sie erreichen können sowie einen Finanzierungsnachweis.
Angebot ist freibleibend, Zwischenverkauf vorbehalten. Alle Angaben und Unterlagen haben wir vom Eigentümer erhalten, deshalb können wir hierfür keine Haftung übernehmen.
Möchten Sie Ihr Haus, Ihre Wohnung oder Ihr Grundstück verkaufen? Wir geben Ihnen gerne eine kostenfreie Preiseinschätzung und begleiten Sie beim Verkauf mit umfassendem Service. Von der Entwicklung der Verkaufsstrategie über Verhandlung mit Interessenten bis zum Notartermin sind wir für Sie da. Vermeiden Sie teure Fehler und nutzen Sie unsere Erfahrung.
Sprechen Sie uns gerne jetzt unverbindlich an!
Kontaktperson
- Firma
- Süddeutsche Immobilien GmbH
- Anrede
- Herr
- Vorname
- Michael
- Name
- Gaißer
- Strasse
- Lange Str.
- Hausnummer
- 60
- PLZ
- 72250
- Ort
- Freudenstadt
- Email Zentrale
- [email protected]
- Telefon Zentrale
- 07441-87111
Immobiliendetails
- Objektnummer
- 215
- Vermarktung
- Kauf
- Objektart
- Gastgewerbe
Kosten
- Kaufpreis
- 950.000,00 €
- Provision
- 3,57 % inkl. 19 % MwSt. inkl. MwSt.
- Courtagehinweis
- 3,57% Käuferprovision inkl. gesetzl. MwSt. verdient und fällig mit Beurkundung des notariellen Kaufvertrages. inkl. MwSt.
Flächen
- Grundstücksfläche
- 740,0 m²
- Gesamtfläche
- 857,0 m²
- Anzahl Zimmer
- 12,0
- Anzahl Stellplätze
- 1,0
- Anzahl Balkone
- 1,0
Zustand
- Baujahr
- 1500
- Zustand
- Modernisiert
- Letzte Modernisierung
- 2022
- Frei ab
- nach Absprache
Ausstattung
- Ausstattungskategorie
- Standard
- Heizungsart
- Zentral
- Befeuerung
- Öl
- Stellplatzart
- Außenstellplatz
- Unterkellert
- Keller
- Abstellraum
Energiepass
- Energieträger
- Öl
- Geltende EnEV
- Nicht nötigt
- Gebäudeart
- Gewerbe
















